
Située dans un quartier résidentiel calme, Léonard Immobilière vous propose cette maison bien agencée offrant un cadre de vie pratique et agréable, sans travaux à prévoir.
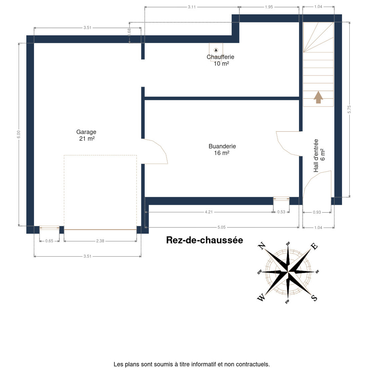
Au rez-de-chaussée, vous trouverez un hall d’entrée, une buanderie ainsi qu’un garage avec espace de rangement.
À l’étage, la maison offre un séjour lumineux donnant accès au balcon, une cuisine équipée, un grand hall central avec cage d’escalier et un WC indépendant.
Au second, deux chambres confortables, une salle de bain et un accès direct à l’extérieur complètent l’ensemble.
À l’extérieur, un local de rangement attenant à la maison complète les aménagements.
Le jardin aménagé en paliers, vous réserve un agréable coin de verdure en hauteur, presque en lisière de bois, avec une vue dégagée au-dessus des toits, parfait pour profiter du calme et de la nature.
D'un point de vue technique, le bien dispose d'un chauffage central gaz (chaudière 2024), de châssis double vitrage PVC, d'un PEB D et d'une électricité conforme !
Contactez-nous pour organiser une visite au 0490/15.72.51 !
Un bien complet, fonctionnel et sans travaux, parfait pour un premier achat ou pour ceux qui recherchent un logement pratique avec garage et extérieur.
Adresse :
Rue du travail 22 - 4821 Andrimont
Référence | 6837224 |
---|---|
Catégorie | Bel-étage |
Meublé | Non |
Nombre de chambres | 2 |
Nombre de salles de bain | 1 |
Jardin | Oui |
Surface du jardin | 141 m² |
Garage | Oui |
Terrasse | Oui |
Parking | Non |
Surface habitable | 137 m² |
Surface du terrain | 203 m² |
Disponibilité | à l'acte |
Nombre d'étages | 3 |
---|
Nombre de garage | 1 |
---|---|
Parking intérieur | Non |
Parking extérieur | Non |
Type de façade avant | crépi |
Type de toit | toit plat |
Accès handicapés | Non |
---|---|
Cuisine | Oui |
Chauffage (ind/coll) (type (ind/coll)) | individuel |
Ascenseur | Non |
Double vitrage | Oui |
Chauffage (type) | gaz (chau. centr.) |
Sdb (type) | douche |
Orientation du bâtiment (façade arrière) | nord-est |
---|---|
Type d'environnement | calme |
Type d'environnement 2 | central |
Exposition de la façade avant | sud-ouest |
Largeur front de rue | 11 |
---|---|
Surface bâtie (surf. bât. princ.) | 79 |
Nbre de toilette(s) (nombre) | 2 |
Chambre 1 (surface) | 14.59 m² |
Chambre 2 (surface) | 16.29 m² |
Surface brute | 159 m² |
Surface nette | 137 m² |
Largeur de façade | 11 |
Profondeur terrain | 19 |
Garage (surface) | 21.05 m² |
Salle de séjour (surface) | 19.82 m² |
Cuisine (surface) | 14.07 m² |
Buanderie (surface) | 16.03 m² |
Salle de bain 1 (surface) | 6.89 m² |
Hall d'entrée (surface) | 5.95 m² |
Orientation de la terrasse 1 | nord-est |
Nbre de pièce(s) (nombre) | 13 |
Buanderie | Oui |
---|---|
Lave-vaisselle | Oui |
Hall d'entrée | Oui |
Volets | Oui |
---|---|
Volets (type) | volets type manuel |
Magasins (distance (m)) | 1500 |
---|---|
Écoles (distance (m)) | 1500 |
Transports en commun (distance (m)) | 750 |
Magasins | Oui |
Ecoles | Oui |
Transports en commun | Oui |
Autoroute | Oui |
Autoroute (distance (m)) | 4000 |
Piscine | Non |
---|
Fenêtres | Oui |
---|---|
Châssis (type) | pvc |
Type de éclairage | spots encastrés |
Type de éclairage | spots |
Sous régime TVA | Non |
---|---|
Loué | Non |
Habité (détails) | Oui |
Section | B |
---|---|
Numéro (n°) | 258w6 |
Surface (ha/a/ca) (surf. (ha/a/ca)) | 203 |
Revenu cadastral (€) (montant) | 632 € |
Jugement en cours | Non |
---|---|
Permis de bâtir | Non |
Permis de lotir | Non |
Destination bâtiment (type) | privé - habitation |
Droit de préemption | Non |
Affectation urbanistique | zone d'habitat |
Intimation en justice | Non |
Égouts | Oui |
---|---|
Électricité | Oui |
Télévision par cable | Oui |
Gaz | Oui |
Eau | Oui |
Attestation du sol | Oui |
---|---|
Certificat d'électricité (oui/non) | oui, conforme |
Certificat électricité - date | 14/06/2021 |
Surface de terrasse 1 | 26 m² |
---|
Type de revêtement de sol | carrelages |
---|
Label PEB (classe) | D |
---|---|
PEB E-SPEC (kwh/m²/an) | 278 |
E total (Kwh/an) | 42988 |
PEB code unique | 20250523 |
PEB valide jusqu'au (datetime) | 23/05/2035 |
Date du PEB (datetime) | 23/05/2025 |