Villa - vendu 4801 Stembert

PEB : D
  • 4 chambres
  • 1 salle de bain
  • 172 m²
  • 1
  • 1

Description

Léonard Immobilière vous propose cette spacieuse maison 4 façades avec 4 à 5 chambres, idéale pour une grande famille grâce à ses volumes généreux et son potentiel d’aménagement !

Au rez-de-chaussée, vous serez accueilli par un vaste hall d’entrée avec WC séparé, menant vers un séjour lumineux, une cuisine équipée, ainsi qu’une chambre de plain-pied. Vous y trouverez également une salle de douche récemment rénovée en grande partie.

À l’étage, la maison dispose de trois belles chambres, ainsi qu’un grenier aisément aménageable en cinquième chambre ou en espace polyvalent selon vos besoins.

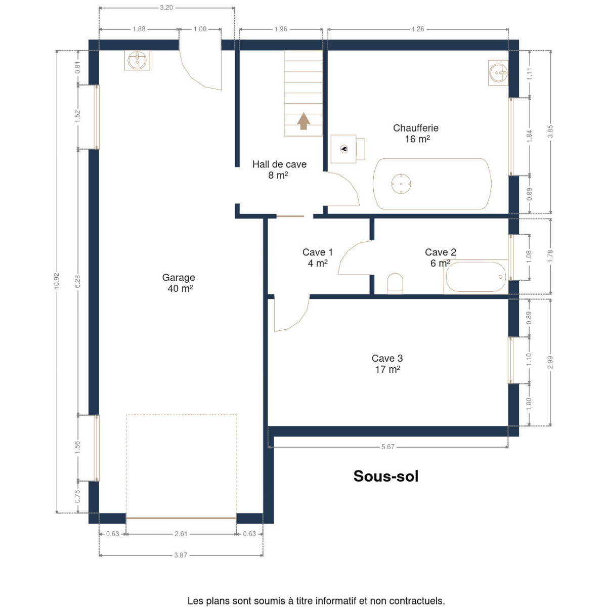
Le sous-sol est un véritable atout : un grand garage, une cave chaufferie, une cave polyvalente, ainsi qu’une cave avec WC. Toutes les caves sont entièrement carrelées, parfait pour du stockage ou un atelier.

À l’extérieur, vous profiterez d’un jardin agréable ainsi que d’un espace de parking pouvant accueillir une à deux voitures supplémentaires.

D’un point de vue technique, le bien dispose de châssis double vitrage PVC 2014 et simple vitrage bois au sous-sol, un chauffage central au mazout, une électricité conforme et un PEB D !

Une maison aux nombreuses possibilités, prête à accueillir votre projet de vie !
Contactez-nous pour organiser une visite au 0490/15.72.51 !

Adresse :

Route de Hevremont 25 - 4801 Stembert

Documents

 Livret

Caractéristiques

Général

Référence 7295661
Catégorie Villa
Meublé Non
Nombre de chambres 4
Nombre de salles de bain 1
Jardin Oui
Surface du jardin 747 m²
Garage Oui
Terrasse Oui
Parking Non
Surface habitable 172 m²
Surface du terrain 852 m²
Disponibilité à l'acte

Bâtiment

Année de construction 1973
Nombre de garage 1
Parking intérieur Non
Parking extérieur Oui
Parking(s) extérieur (nombre) 1
Type de toit en pente

Nom, catégorie & situation

Nombre d'étages 1

Equipement de base

Accès handicapés Non
Cuisine Oui
Chauffage (ind/coll) (type (ind/coll)) individuel
Ascenseur Non
Double vitrage Oui
Chauffage (type) mazout (chauf. centr.)
Type de cuisine équipée
Sdb (type) douche

Spécificités terrain

Orientation du bâtiment (façade arrière) nord
Type d'environnement zone d'habitation
Type d'environnement 2 central
Exposition de la façade avant sud
Risque d'inondation (type innondation) pas situé en zone inondable

En chiffres

Largeur front de rue 20
Surface bâtie (surf. bât. princ.) 105
Nbre de dressing(s) (nombre) 1
Nbre de toilette(s) (nombre) 2
Chambre 1 (surface) 17.37 m²
Chambre 2 (surface) 12.95 m²
Chambre 3 (surface) 19.28 m²
Chambre 4 (surface) 11.38 m²
Surface brute 272 m²
Surface nette 172 m²
Largeur de façade 7
Profondeur terrain 48
Garage (surface) 39.57 m²
Salle de séjour (surface) 28.13 m²
Cuisine (surface) 13.01 m²
Dressing (surface) 8.99 m²
Salle de bain 1 (surface) 6.86 m²
Caves (surface) 30.119999999999997 m²
Grenier (surface) 21.9 m²
Orientation de la terrasse 1 nord
Nbre de pièce(s) (nombre) 19

Divers

Buanderie Oui
Lave-vaisselle Oui
Vestiaire Oui
Cage d'escalier Oui
Hall d'entrée Oui
Marque de lave-vaisselle Miele
Grenier Oui
Cave Oui

Sécurité

Volets Oui
Détails volets (type) type manuel

À proximité

Magasins (distance (m)) 200
Écoles (distance (m)) 100
Transports en commun (distance (m)) 100
Magasins Oui
Ecoles Oui
Transports en commun Oui
Autoroute Oui
Autoroute (distance (m)) 4000

Equipement extérieur

Piscine Non

Équipements techniques

Fenêtres Oui
Châssis (type) bois ou pvc

Charges & Rendement

Sous régime TVA Non
Loué Non

Cadastre

Section B
Numéro (n°) 1051FP0000
Surface (ha/a/ca) (surf. (ha/a/ca)) 931
Revenu cadastral (€) (montant) 1395 €

Domaine juridique

Servitude Oui
Jugement en cours Non
Permis de bâtir Non
Permis de lotir Non
Destination bâtiment (type) privé - habitation
Droit de préemption Non
Affectation urbanistique zone d'habitat rurale
Intimation en justice Non

Raccordements

Égouts Oui
Électricité Oui
Citerne à mazout Oui
Télévision par cable Oui
Eau Oui

Type de matériau & évaluation

Type de revêtement de sol carrelages

Certificats / Attestations

Capacité de la citerne à mazout (capacite) 3200
Attestation citerne - date OUI
Certificat d'électricité (oui/non) oui, conforme

Certificats énergétiques

PEB E-SPEC (kwh/m²/an) 286
E total (Kwh/an) 84734
PEB code unique 20251128007170
PEB valide jusqu'au (datetime) 28/11/2035
Date du PEB (datetime) 28/11/2025
Plus d'informations 0499/18.61.98
  Afficher la carte et les points d'intérêt
Préférences pour les cookies

La protection de vos données personnelles est importante pour nous. C’est pourquoi nous détaillons ci-dessous les différents services et fonctionnalités du site qui utilisent des cookies et nous vous laissons décider des cookies que vous souhaitez autoriser ou refuser.

Veuillez cependant noter que si vous bloquez certains types de cookies, cela pourrait impacter votre expérience de navigation sur notre site ainsi que les fonctionnalités disponibles.

Nous utilisons des cookies fonctionnels obligatoires pour assurer le bon fonctionnement du site. Ils sont, par exemple, nécessaires pour retrouver le résultat d’une recherche ou enregistrer le choix de la langue.

Certaines fonctionnalités, comme l’affichage de vidéos ou de cartes géographiques, sont assurées via des composants externes développés par des partenaires comme YouTube ou Google. Certains composants utilisent des cookies qui sont susceptibles de permettre à ces tiers de suivre le comportement des internautes afin, par exemple, de réaliser du ciblage publicitaire. L’activation de ces fonctionnalités et des cookies associés est donc soumis à votre consentement.