
Léonard Immobilière vous propose cet immeuble de rapport avec compteurs individuels rénové en 2019 composé de deux logements en ordre d’un point de vue urbanistique.
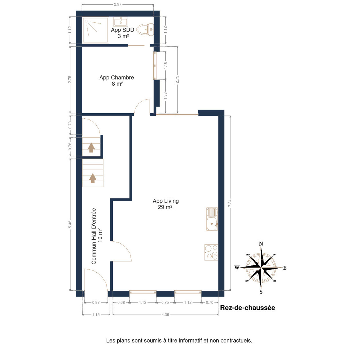
Au rez-de-chaussée, vous trouverez un appartement 1 chambre composé d’un grand séjour, d’une chambre et d’une salle de douche. Cet appartement est actuellement vide, prêt à être reloué ou occupé selon vos projets.
Le premier et le deuxième étage accueillent un duplex comprenant une salle de douche et deux chambres à l’étage, ainsi qu’un séjour spacieux de 33 m², lumineux et agréable à vivre.
Au sous-sol, l’immeuble dispose de caves en suffisance, permettant à chaque unité de bénéficier d’un espace de stockage privatif.
À l’extérieur, le jardin offre une belle superficie et peut être divisé en deux espaces privatifs, un pour chaque appartement, offrant ainsi un confort supplémentaire aux futurs occupants.
Le revenu locatif potentiel s’élève à environ 1 500 €/mois, soit un excellent rendement compte tenu de l’état général du bien et de l'absence de travaux à prévoir.
D’un point de vue technique, le bien dispose d'une nouvelle toiture, de chauffages électriques, de panneaux photovoltaïques individuels, de compteurs individuels gaz, eau et électriques, de certificats électriques conformes jusque 2044 et d’un PEB G et D !
Un bien complet, sain, conforme et prêt à générer des revenus ou accueillir vos projets.
Contactez-nous pour organiser une visite au 0490/15.72.51 !
Adresse :
Rue de la calamine 58 - 4801 Stembert
Référence | 7045464 |
---|---|
Catégorie | Immeuble à appartements |
Meublé | Non |
Nombre de chambres | 3 |
Nombre de salles de bain | 2 |
Jardin | Oui |
Surface du jardin | 128 m² |
Garage | Non |
Terrasse | Oui |
Parking | Non |
Surface habitable | 151 m² |
Surface du terrain | 196 m² |
Disponibilité | à l'acte |
Année de construction | 1903 |
---|---|
Parking intérieur | Non |
Parking extérieur | Non |
Année de rénovation | 2019 |
Type de toit | en pente |
Nombre d'étages | 4 |
---|
Accès handicapés | Non |
---|---|
Cuisine | Oui |
Chauffage (ind/coll) (type (ind/coll)) | individuel |
Ascenseur | Non |
Double vitrage | Oui |
Chauffage (type) | electrique |
Type de cuisine | équipée |
Sdb (type) | douche |
Orientation du bâtiment (façade arrière) | nord |
---|---|
Type d'environnement | zone d'habitation |
Type d'environnement 2 | central |
Exposition de la façade avant | sud |
Risque d'inondation (type innondation) | pas situé en zone inondable |
Largeur front de rue | 6 |
---|---|
Surface bâtie (surf. bât. princ.) | 68 |
Nbre de toilette(s) (nombre) | 3 |
Nombre de sdd | 2 |
Chambre 1 (surface) | 7.12 m² |
Chambre 2 (surface) | 13.27 m² |
Surface brute | 174 m² |
Surface nette | 151 m² |
Largeur de façade | 6 |
Profondeur terrain | 36 |
Nbre de terrasse(s) (nombre) | 1 |
Salle de séjour (surface) | 33 m² |
Buanderie (surface) | 10.16 m² |
Caves (surface) | 22.910000000000004 m² |
Orientation de la terrasse 1 | nord |
Nbre de pièce(s) (nombre) | 18 |
Buanderie | Oui |
---|---|
Lave-vaisselle | Oui |
Cage d'escalier | Oui |
Hall d'entrée | Oui |
Téléphone | Oui |
Cave | Oui |
Volets | Oui |
---|---|
Volets (type) | type manuel |
Magasins (distance (m)) | 1000 |
---|---|
Écoles (distance (m)) | 500 |
Transports en commun (distance (m)) | 50 |
Centre sportif (distance (m)) | 500 |
Magasins | Oui |
Ecoles | Oui |
Transports en commun | Oui |
Centre sportif | Oui |
Autoroute | Oui |
Autoroute (distance (m)) | 2900 |
Piscine | Non |
---|
Fenêtres | Oui |
---|---|
Centrale tél. | Oui |
Châssis (type) | bois |
Type de éclairage | spots encastrés |
Type de éclairage | spots |
Sous régime TVA | Non |
---|---|
Loué | Oui |
Habité (détails) | OUI |
Section | B |
---|---|
Numéro (n°) | 0924K25P0000 |
Surface (ha/a/ca) (surf. (ha/a/ca)) | 196 |
Revenu cadastral (€) (montant) | 463 € |
Servitude | Non |
---|---|
Jugement en cours | Non |
Permis de bâtir | Non |
Permis de lotir | Non |
Destination bâtiment (type) | privé - habitation |
Droit de préemption | Non |
Affectation urbanistique | zone d'habitat |
Intimation en justice | Non |
Égouts | Oui |
---|---|
Électricité | Oui |
Télévision par cable | Oui |
Gaz | Oui |
Câbles téléphoniques | Oui |
Eau | Oui |
Attestation du sol | Oui |
---|---|
Certificat d'électricité (oui/non) | oui, conforme |
Certificat électricité - date | 10/04/2019 |
Surface de terrasse 1 | 29 m² |
---|
Type de revêtement de sol | quickstep |
---|
Label PEB (classe) | D |
---|---|
PEB E-SPEC (kwh/m²/an) | 260 |
E total (Kwh/an) | 20883 |
PEB code unique | 20250722015343 |
PEB valide jusqu'au (datetime) | 22/07/2035 |
Date du PEB (datetime) | 22/07/2025 |