Maison - vendu 4801 Stembert

PEB : D
  • 2 chambres
  • 1 salle de bain
  • 85 m²

Description

Léonard Immobilière vous propose cette maison parfaitement entretenue et sans travaux.

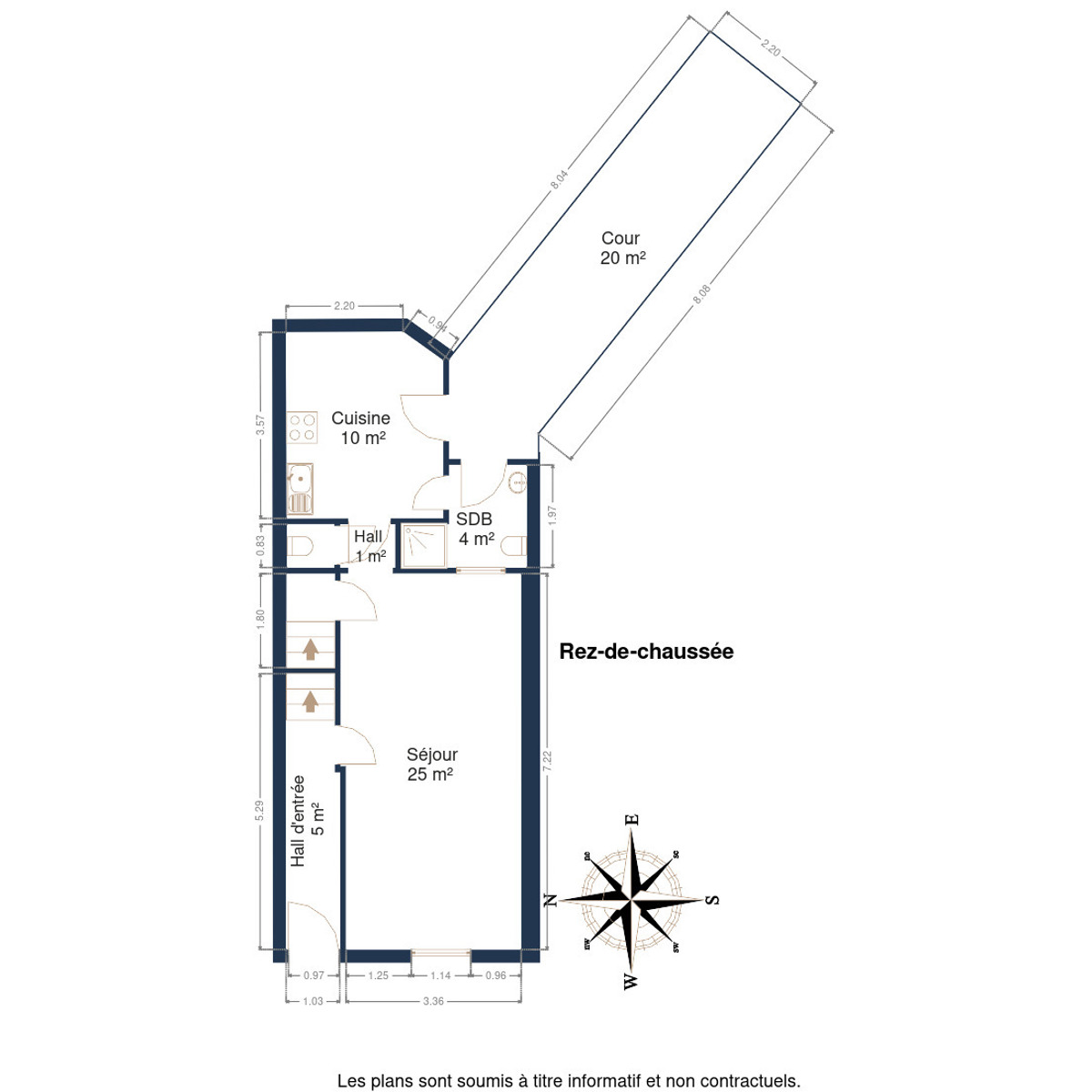
Le rez-de-chaussée offre une entrée accueillante, un séjour lumineux idéal pour vos moments en famille, un WC indépendant, une cuisine équipée fonctionnelle ainsi qu’une salle de douche. Depuis cet espace de vie, vous accédez directement à la terrasse extérieure, parfaite pour profiter des beaux jours.

À l’étage, un hall de nuit mène à deux chambres confortables, prêtes à accueillir votre espace nuit, dresssing ou bureau selon vos besoins.

Le sous-sol complète l’ensemble avec trois caves, offrant de nombreuses possibilités de rangements.

À l’extérieur, la terrasse permet de profiter pleinement d’un espace extérieur agréable et sans entretien particulier.

D’un point de vue technique, le bien dispose d’un chauffage central gaz, de châssis double vitrage PVC, d’une électricité conforme et d’un PEB D.

Une maison entretenue avec soin, où vous pourrez poser vos valises sans devoir envisager de travaux !

Adresse :

Antoine de Berghes 19 - 4801 Stembert

Documents

 Livret Servisco

Caractéristiques

Général

Référence 6990728
Catégorie Maison
Meublé Non
Nombre de chambres 2
Nombre de salles de bain 1
Garage Non
Terrasse Oui
Parking Non
Surface habitable 85 m²
Surface du terrain 85 m²
Disponibilité à l'acte

Nom, catégorie & situation

Nombre d'étages 1

Bâtiment

Parking intérieur Non
Parking extérieur Non
Type de toit en pente

Equipement de base

Accès handicapés Non
Cuisine Oui
Chauffage (ind/coll) (type (ind/coll)) individuel
Ascenseur Non
Double vitrage Oui
Chauffage (type) gaz (chau. centr.)
Type de cuisine semi-équipée
Sdb (type) douche

En chiffres

Largeur front de rue 5
Surface bâtie (surf. bât. princ.) 60
Nbre de toilette(s) (nombre) 2
Nombre de sdd 1
Chambre 1 (surface) 9.88 m²
Chambre 2 (surface) 15.49 m²
Surface brute 143 m²
Surface nette 85 m²
Largeur de façade 5
Profondeur terrain 19
Nbre de terrasse(s) (nombre) 1
Salle de séjour (surface) 24.6 m²
Cuisine (surface) 10.52 m²
Salle de bain 1 (surface) 3.68 m²
Caves (surface) 23.41 m²
Grenier (surface) 20.87 m²
Orientation de la terrasse 1 est
Nbre de pièce(s) (nombre) 15

Sécurité

Volets Oui
Détails volets (type) type manuel

À proximité

Magasins (distance (m)) 500
Écoles (distance (m)) 500
Transports en commun (distance (m)) 100
Centre sportif (distance (m)) 2000
Magasins Oui
Ecoles Oui
Transports en commun Oui
Centre sportif Oui
Autoroute Oui
Autoroute (distance (m)) 4000

Divers

Cage d'escalier Oui
Hall d'entrée Oui
Grenier Oui
Cave Oui

Equipement extérieur

Piscine Non

Équipements techniques

Fenêtres Oui
Châssis (type) pvc

Charges & Rendement

Sous régime TVA Non
Loué Non
Habité (détails) OUI

Cadastre

Section B
Numéro (n°) 0936L2P0000
Surface (ha/a/ca) (surf. (ha/a/ca)) 85
Revenu cadastral (€) (montant) 396 €

Domaine juridique

Servitude Non
Jugement en cours Non
Permis de bâtir Non
Permis de lotir Non
Destination bâtiment (type) privé - habitation
Droit de préemption Non
Affectation urbanistique zone d'habitat
Intimation en justice Non

Raccordements

Égouts Oui
Électricité Oui
Télévision par cable Oui
Gaz Oui
Eau Oui

Spécificités terrain

Type d'environnement zone d'habitation
Exposition de la façade avant ouest

Certificats / Attestations

Attestation du sol Oui
Certificat d'électricité (oui/non) oui, conforme
Certificat électricité - date 29/06/2016

Caractéristiques Principales

Surface de terrasse 1 20 m²

Type de matériau & évaluation

Type de revêtement de sol carrelages

Certificats énergétiques

Label PEB (classe) D
PEB E-SPEC (kwh/m²/an) 308
E total (Kwh/an) 31508
PEB code unique 20250710019055
PEB valide jusqu'au (datetime) 10/07/2035
Date du PEB (datetime) 10/07/2025
Plus d'informations 0499/18.61.98
  Afficher la carte et les points d'intérêt
Préférences pour les cookies

La protection de vos données personnelles est importante pour nous. C’est pourquoi nous détaillons ci-dessous les différents services et fonctionnalités du site qui utilisent des cookies et nous vous laissons décider des cookies que vous souhaitez autoriser ou refuser.

Veuillez cependant noter que si vous bloquez certains types de cookies, cela pourrait impacter votre expérience de navigation sur notre site ainsi que les fonctionnalités disponibles.

Nous utilisons des cookies fonctionnels obligatoires pour assurer le bon fonctionnement du site. Ils sont, par exemple, nécessaires pour retrouver le résultat d’une recherche ou enregistrer le choix de la langue.

Certaines fonctionnalités, comme l’affichage de vidéos ou de cartes géographiques, sont assurées via des composants externes développés par des partenaires comme YouTube ou Google. Certains composants utilisent des cookies qui sont susceptibles de permettre à ces tiers de suivre le comportement des internautes afin, par exemple, de réaliser du ciblage publicitaire. L’activation de ces fonctionnalités et des cookies associés est donc soumis à votre consentement.