
Située dans un quartier calme et apprécié de Stembert, cette maison bel-étage séduit par ses volumes et sa disposition idéale pour une vie familiale.
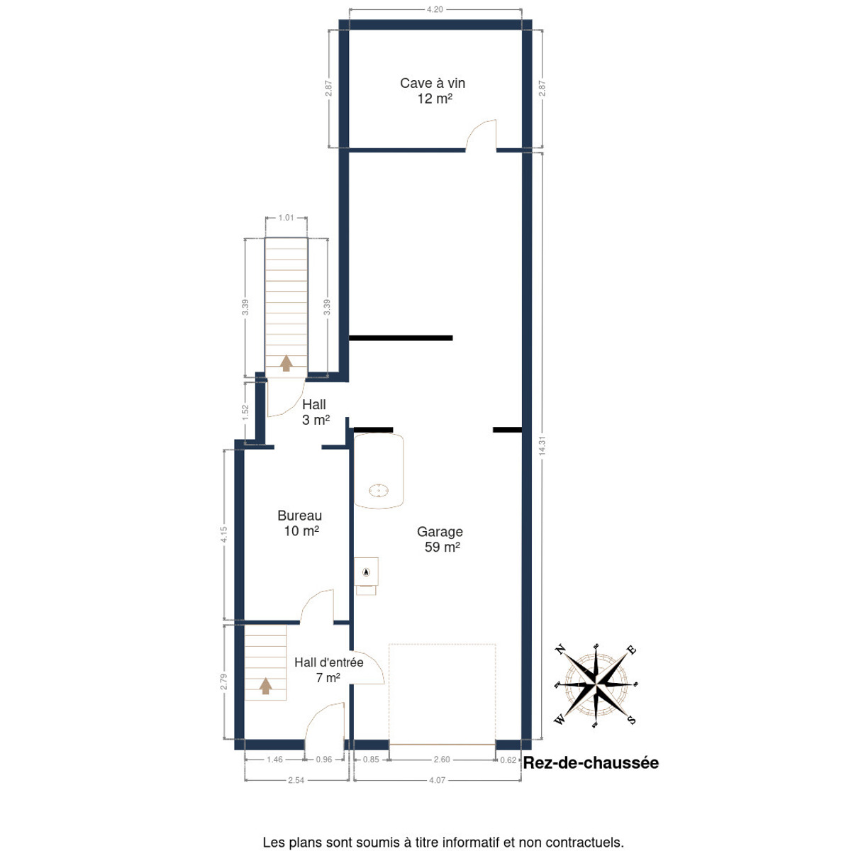
Au rez-de-chaussée, vous découvrirez un superbe hall d’entrée, un grand garage double avec porte électrique, un bureau pratique pour télétravailler ou exercer une activité indépendante, ainsi qu’une véritable cave à vin. Ce niveau donne également accès au jardin par un escalier extérieur.
À l’étage principal, vous profitez d’une cuisine, d’un spacieux séjour lumineux avec feu ouvert, et d’un accès direct au jardin.
Le deuxième étage comprend trois chambres à coucher dont une plus petite, une salle de bain et un WC indépendant.
À l’extérieur, un beau jardin verdoyant vous attend, agrémenté d’une agréable terrasse.
D'un point de vue technique, le bien dispose de châssis double vitrage bois et Pvc avec volets électriques au premier étage, d'une électricité non-conforme, d'un chauffage central au mazout et d'un PEB D !
Quelques travaux sont à prévoir, offrant ainsi l’opportunité de personnaliser la maison à votre goût et d’y apporter votre touche.
Contactez-nous pour organiser une visite au 0490/15.72.51 !
Adresse :
Avenue Jules Destrée 50 - 4801 Stembert
Référence | 6880642 |
---|---|
Catégorie | Bel-étage |
Meublé | Non |
Nombre de chambres | 3 |
Nombre de salles de bain | 1 |
Jardin | Oui |
Surface du jardin | 166 m² |
Garage | Oui |
Terrasse | Oui |
Parking | Oui |
Surface habitable | 116 m² |
Surface du terrain | 240 m² |
Disponibilité | à convenir |
Nombre d'étages | 2 |
---|
Nombre de garage | 2 |
---|---|
Parking intérieur | Oui |
Parking extérieur | Oui |
Parking(s) extérieur (nombre) | 2 |
Type de toit | en pente |
Accès handicapés | Non |
---|---|
Cuisine | Oui |
Chauffage (ind/coll) (type (ind/coll)) | individuel |
Ascenseur | Non |
Double vitrage | Oui |
Chauffage (type) | mazout (chauf. centr.) |
Type de cuisine | non-équipée |
Sdb (type) | bain |
Parlophone | Oui |
Orientation du bâtiment (façade arrière) | nord-est |
---|---|
Type d'environnement | zone d'habitation |
Type d'environnement 2 | calme |
Exposition de la façade avant | sud-ouest |
Risque d'inondation (type innondation) | pas situé en zone inondable |
Largeur front de rue | 7 |
---|---|
Surface bâtie (surf. bât. princ.) | 74 |
Nbre de toilette(s) (nombre) | 1 |
Chambre 1 (surface) | 11.07 m² |
Chambre 2 (surface) | 15.44 m² |
Chambre 3 (surface) | 7 m² |
Surface brute | 229 m² |
Surface nette | 116 m² |
Largeur de façade | 7 |
Profondeur terrain | 34 |
Garage (surface) | 59.18 m² |
Nbre de terrasse(s) (nombre) | 1 |
Salle de séjour (surface) | 37.36 m² |
Cuisine (surface) | 8.42 m² |
Salle de bain 1 (surface) | 6.02 m² |
Grenier (surface) | 40.7 m² |
Bureau (surface) | 10.53 m² |
Hall d'entrée (surface) | 7.08 m² |
Orientation de la terrasse 1 | nord-est |
Nbre de pièce(s) (nombre) | 13 |
Profession libérale poss. | Oui |
---|---|
Jugement en cours | Non |
Permis de bâtir | Non |
Permis de lotir | Non |
Destination bâtiment (type) | privé - habitation |
Droit de préemption | Non |
Affectation urbanistique | zone d'habitat |
Intimation en justice | Non |
Bureau | Oui |
---|---|
Cave à vin | Oui |
Cage d'escalier | Oui |
Hall d'entrée | Oui |
Téléphone | Oui |
Grenier | Oui |
Cave | Oui |
Volets | Oui |
---|---|
Type de prévention du feu | détecteurs de fumée |
Magasins (distance (m)) | 500 |
---|---|
Écoles (distance (m)) | 500 |
Transports en commun (distance (m)) | 100 |
Magasins | Oui |
Ecoles | Oui |
Transports en commun | Oui |
Autoroute | Oui |
Autoroute (distance (m)) | 3200 |
Piscine | Non |
---|
Fenêtres | Oui |
---|---|
Centrale tél. | Oui |
Châssis (type) | bois ou pvc |
Sous régime TVA | Non |
---|---|
Habité (détails) | OUI |
Section | B |
---|---|
Numéro (n°) | 0864M3P0000 |
Surface (ha/a/ca) (surf. (ha/a/ca)) | 240 |
Revenu cadastral (€) (montant) | 959 € |
Égouts | Oui |
---|---|
Électricité | Oui |
Citerne à mazout | Oui |
Télévision par cable | Oui |
Câbles téléphoniques | Oui |
Eau | Oui |
Attestation du sol | Oui |
---|---|
Capacité de la citerne à mazout (capacite) | 2500 |
Certificat d'électricité (oui/non) | non |
Surface de terrasse 1 | 45 m² |
---|
Type de revêtement de sol | carrelages |
---|
Label PEB (classe) | D |
---|---|
PEB E-SPEC (kwh/m²/an) | 307 |
E total (Kwh/an) | 36485 |
PEB code unique | 20250526013058 |
PEB valide jusqu'au (datetime) | 26/05/2035 |
Date du PEB (datetime) | 26/05/2025 |