Description
Adresse :
ROUTE DE HEVREMONT 308 - 4801 Stembert
Documents
Caractéristiques
Général
| Référence | 6622812 |
|---|---|
| Catégorie | Maison |
| Meublé | Non |
| Nombre de chambres | 4 |
| Nombre de salles de bain | 1 |
| Garage | Non |
| Terrasse | Oui |
| Parking | Oui |
| Surface habitable | 162 m² |
| Surface du terrain | 170 m² |
| Disponibilité | à l'acte |
Nom, catégorie & situation
| Nombre d'étages | 3 |
|---|
Bâtiment
| Parking intérieur | Non |
|---|---|
| Parking extérieur | Oui |
| Parking(s) extérieur (nombre) | 2 |
| Type de toit | en pente |
Equipement de base
| Accès handicapés | Non |
|---|---|
| Cuisine | Oui |
| Chauffage (ind/coll) (type (ind/coll)) | individuel |
| Ascenseur | Non |
| Double vitrage | Oui |
| Chauffage (type) | gaz (chau. centr.) |
| Type de cuisine | équipée |
| Sdb (type) | douche et bain |
Spécificités terrain
| Orientation du bâtiment (façade arrière) | sud |
|---|---|
| Type d'environnement | zone d'habitation |
| Type d'environnement 2 | campagne |
| Exposition de la façade avant | nord |
| Risque d'inondation (type innondation) | pas situé en zone inondable |
En chiffres
| Largeur front de rue | 7.5 |
|---|---|
| Surface bâtie (surf. bât. princ.) | 112 |
| Nbre de toilette(s) (nombre) | 2 |
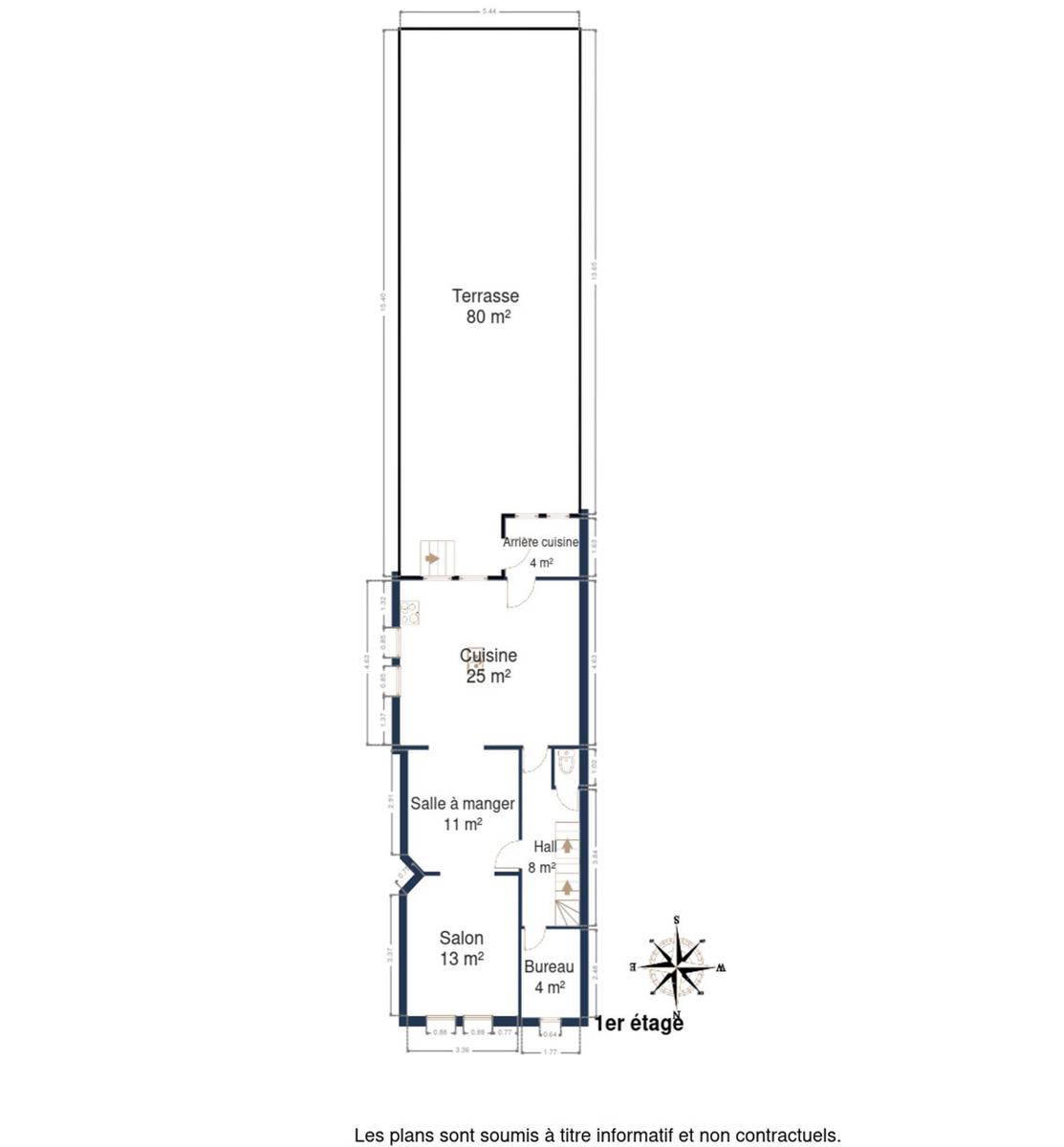
| Chambre 1 (surface) | 12.76 m² |
| Chambre 2 (surface) | 13.15 m² |
| Chambre 3 (surface) | 13.28 m² |
| Chambre 4 (surface) | 12.45 m² |
| Largeur de façade | 8 |
| Profondeur terrain | 30 |
| Nbre de terrasse(s) (nombre) | 1 |
| Salle à manger (surface) | 11.31 m² |
| Cuisine (surface) | 25.15 m² |
| Bureau (surface) | 4.37 m² |
| Orientation de la terrasse 1 | sud |
Divers
| Buanderie | Oui |
|---|---|
| Bureau | Oui |
| Grenier | Oui |
| Cave | Oui |
Domaine juridique
| Profession libérale poss. | Oui |
|---|---|
| Servitude | Oui |
| Jugement en cours | Non |
| Permis de bâtir | Non |
| Permis de lotir | Non |
| Destination bâtiment (type) | privé - habitation |
| Droit de préemption | Non |
| Affectation urbanistique | zone d'habitat |
| Intimation en justice | Non |
Sécurité
| Volets | Oui |
|---|---|
| Détails volets (type) | volets type manuel |
À proximité
| Transports en commun (distance (m)) | 5 |
|---|---|
| Transports en commun | Oui |
| Autoroute | Oui |
| Autoroute (distance (m)) | 5000 |
Equipement extérieur
| Piscine | Non |
|---|
Charges & Rendement
| Sous régime TVA | Non |
|---|---|
| Loué | Non |
| Habité (détails) | OUI |
Cadastre
| Section | B |
|---|---|
| Numéro (n°) | 0486ZP0000 |
| Surface (ha/a/ca) (surf. (ha/a/ca)) | 170 |
| Revenu cadastral (€) (montant) | 915 € |
Raccordements
| Égouts | Non |
|---|---|
| Électricité | Oui |
| Télévision par cable | Oui |
| Gaz | Oui |
| Câbles téléphoniques | Oui |
| Eau | Oui |
Équipements techniques
| Centrale tél. | Oui |
|---|---|
| Châssis (type) | pvc |
Caractéristiques Principales
| Surface de terrasse 1 | 80 m² |
|---|
Type de matériau & évaluation
| Type de revêtement de sol | carrelages |
|---|
Certificats / Attestations
| Certificat d'électricité (oui/non) | oui, conforme |
|---|---|
| Certificat électricité - date | 02/11/2012 |
Certificats énergétiques
| PEB E-SPEC (kwh/m²/an) | 293 |
|---|---|
| E total (Kwh/an) | 59914 |
| PEB code unique | 20250122028859 |
| PEB valide jusqu'au (datetime) | 22/01/2035 |
| Date du PEB (datetime) | 22/01/2025 |
