
Léonard Immobilière vous propose un immeuble de rapport, situé au cœur de Verviers, il représente une opportunité idéale pour un investissement locatif sans travaux à prévoir. Composé de deux appartements rénovés, il allie modernité et potentiel de rendement intéressant.
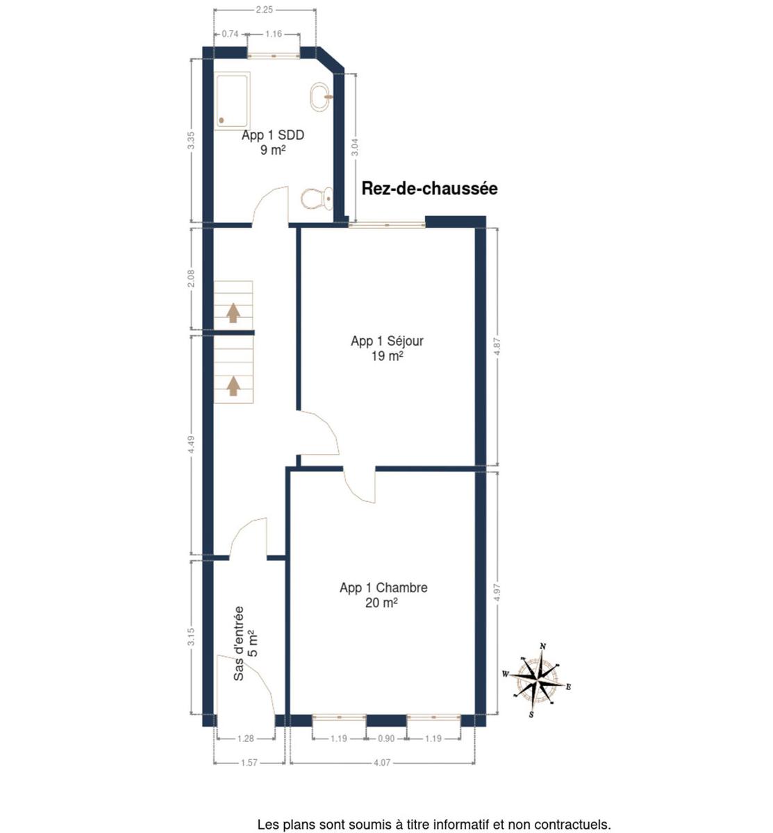
Le premier appartement, situé au rez-de-chaussée et au niveau inférieur (-1), est un duplex 1 chambre. Il propose une belle pièce de vie lumineuse, une chambre confortable, ainsi qu’un accès direct à un jardin privatif, rare en centre-ville. Cet espace extérieur est un véritable atout pour attirer les locataires.
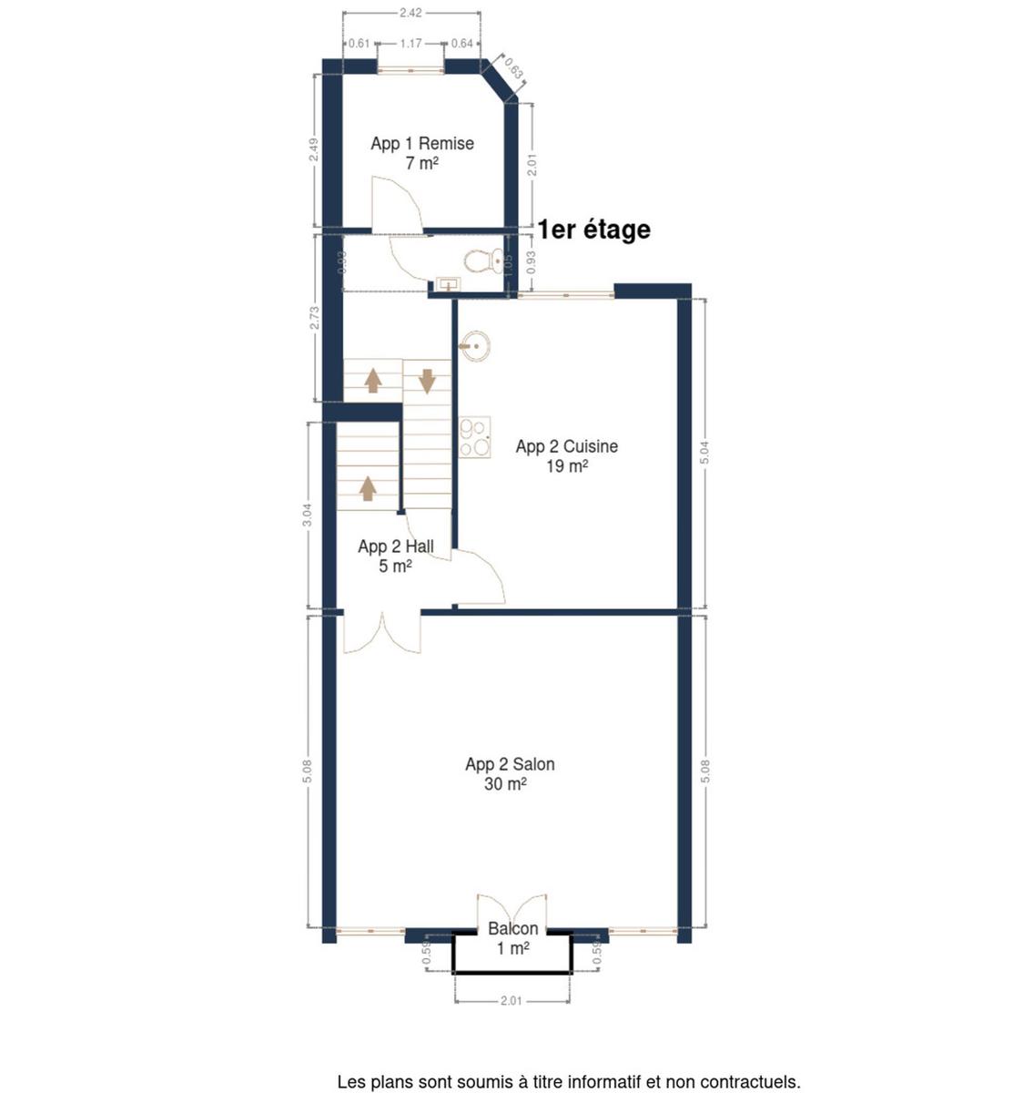
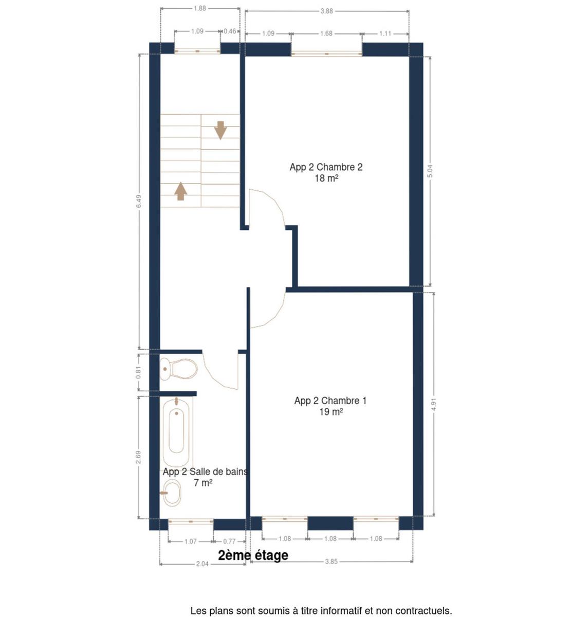
Le second appartement est un triplex de 5 chambres qui occupe les 1er, 2e et 3e étages. Avec ses vastes espaces et ses cinq chambres, il est idéal pour une grande famille.
Bien que les propriétaires occupent actuellement les lieux, le potentiel locatif de cet immeuble est estimé à 1400€ par mois.
D'un point de vue technique, le bien est équipé de compteurs individuels à gaz et d'électricité ainsi que d'un compteur à eau, chaudières à gaz individuelles vaillant et d'une électricité conforme.
Adresse :
RUE DU PALAIS 18 - 4800 Verviers
Référence | 6237538 |
---|---|
Catégorie | Immeuble à appartements |
Meublé | Non |
Nombre de chambres | 6 |
Nombre de salles de bain | 1 |
Jardin | Oui |
Surface du jardin | 75 m² |
Garage | Non |
Terrasse | Oui |
Parking | Non |
Surface habitable | 263 m² |
Surface du terrain | 160 m² |
Disponibilité | à l'acte |
Année de construction | 1875 |
---|---|
Parking intérieur | Non |
Parking extérieur | Non |
Année de rénovation | 2016 |
Type de façade avant | béton |
Type de toit | en pente |
Nombre d'étages | 5 |
---|
Accès handicapés | Non |
---|---|
Cuisine | Oui |
Chauffage (ind/coll) (type (ind/coll)) | individuel |
Ascenseur | Non |
Double vitrage | Oui |
Chauffage (type) | gaz (chau. centr.) |
Type de cuisine | équipée |
Sdb (type) | douche |
Orientation du bâtiment (façade arrière) | nord |
---|---|
Type d'environnement | zone d'habitation |
Type d'environnement 2 | central |
Exposition de la façade avant | sud |
Risque d'inondation (type innondation) | pas situé en zone inondable |
Largeur front de rue | 7 |
---|---|
Surface bâtie (surf. bât. princ.) | 85 |
Nbre de toilette(s) (nombre) | 3 |
Nombre de sdd | 1 |
Chambre 1 (surface) | 18.9 m² |
Chambre 2 (surface) | 17.89 m² |
Chambre 3 (surface) | 17.71 m² |
Chambre 4 (surface) | 9.37 m² |
Chambre 5 (surface) | 16.4 m² |
Surface brute | 338 m² |
Surface nette | 263 m² |
Largeur de façade | 5.65 |
Profondeur terrain | 21 |
Salle de séjour (surface) | 18.65 m² |
Cuisine (surface) | 16.47 m² |
Buanderie (surface) | 9.24 m² |
Salle de bain 1 (surface) | 7.27 m² |
Caves (surface) | 25.27 m² |
Grenier (surface) | 48.84 m² |
Nbre de pièce(s) (nombre) | 18 |
Buanderie | Oui |
---|---|
Lave-vaisselle | Oui |
Cage d'escalier | Oui |
Marque de lave-vaisselle | de la marque BOSCH |
Grenier | Oui |
Cave | Oui |
Profession libérale poss. | Oui |
---|---|
Servitude | Non |
Jugement en cours | Non |
Permis de bâtir | Non |
Permis de lotir | Non |
Destination bâtiment (type) | im. rapport appartement |
Droit de préemption | Non |
Affectation urbanistique | zone d'habitat |
Intimation en justice | Non |
Volets | Oui |
---|---|
Volets (type) | volets type manuel |
Magasins (distance (m)) | 100 |
---|---|
Écoles (distance (m)) | 100 |
Transports en commun (distance (m)) | 110 |
Magasins | Oui |
Ecoles | Oui |
Transports en commun | Oui |
Autoroute | Oui |
Autoroute (distance (m)) | 1300 |
Piscine | Non |
---|
Fenêtres | Oui |
---|---|
Châssis (type) | pvc |
Sous régime TVA | Non |
---|---|
Loué | Non |
Habité (détails) | OUI |
Section | D |
---|---|
Numéro (n°) | 0350H2P0000 |
Surface (ha/a/ca) (surf. (ha/a/ca)) | 160 |
Revenu cadastral (€) (montant) | 1065 € |
Égouts | Oui |
---|---|
Électricité | Oui |
Télévision par cable | Oui |
Gaz | Oui |
Surface de terrasse 1 | 10 m² |
---|
Chambre 1 (revêtement de sol) | parquet |
---|---|
Type de revêtement de sol | parquet |
Certificat d'électricité (oui/non) | oui, conforme |
---|
Label PEB (classe) | C |
---|---|
PEB E-SPEC (kwh/m²/an) | 234 |
E total (Kwh/an) | 19574 |
PEB code unique | 20241001013603 |
PEB valide jusqu'au (datetime) | 01/10/2034 |
Date du PEB (datetime) | 01/10/2024 |