
Léonard Immobilière vous propose cette charmante maison familiale située dans un quartier paisible, offrant un espace de vie généreux et de nombreuses possibilités d’aménagement.
Dès l’entrée, un hall vous accueille et vous mène à une cuisine ouverte, qui s'étend sur un grand séjour lumineux. Cet espace de vie convivial s'ouvre sur une agréable terrasse, idéale pour profiter des moments en extérieur.
À l’étage, vous trouverez une salle de bain bien équipée ainsi qu’une chambre spacieuse, offrant l'opportunité de la personnaliser entièrement, car elle reste à peindre.
Le dernier étage dispose de deux autres chambres confortables.
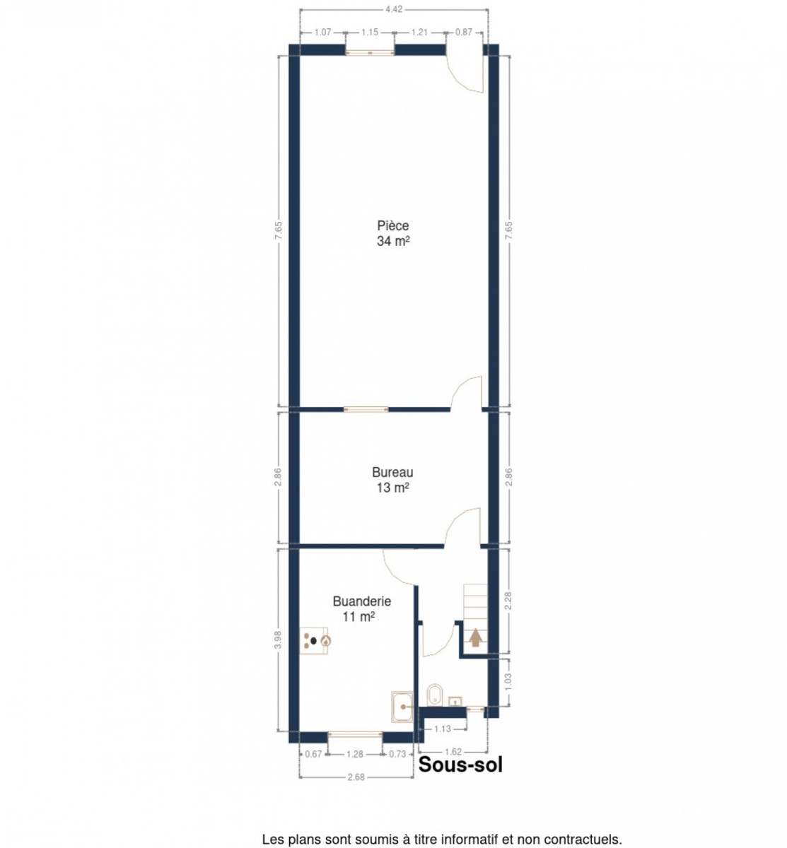
Le sous-sol est un atout majeur de cette maison. Il comprend un WC, une buanderie pratique, et deux grandes pièces polyvalentes qui peuvent être utilisées pour une profession libérale ou transformées en salle de jeux, bureau, ou salle de sport. Ces pièces bénéficient également d'un accès direct au jardin.
Cette maison est dotée d’un chauffage au gaz performant, mais l'électricité nécessite une mise en conformité. La performance énergétique du bâtiment (PEB) est D.
Cette propriété est idéale pour une famille ou pour ceux qui recherchent un bien avec un fort potentiel d’amélioration. Ne manquez pas cette opportunité unique !
Adresse :
RUE VICTOR BESME 54 - 4800 Lambermont
Référence | 6632372 |
---|---|
Catégorie | Maison |
Meublé | Non |
Nombre de chambres | 4 |
Nombre de salles de bain | 1 |
Jardin | Oui |
Surface du jardin | 80 m² |
Garage | Non |
Terrasse | Oui |
Parking | Non |
Surface habitable | 185 m² |
Surface du terrain | 180 m² |
Disponibilité | à l'acte |
Nombre d'étages | 2 |
---|
Parking intérieur | Non |
---|---|
Parking extérieur | Non |
Type de toit | en pente |
Accès handicapés | Non |
---|---|
Cuisine | Oui |
Chauffage (ind/coll) (type (ind/coll)) | individuel |
Ascenseur | Non |
Double vitrage | Oui |
Chauffage (type) | gaz (chau. centr.) |
Type de cuisine | semi-équipée |
Sdb (type) | douche dans le bain |
Orientation du bâtiment (façade arrière) | ouest |
---|---|
Type d'environnement | zone d'habitation |
Type d'environnement 2 | central |
Exposition de la façade avant | est |
Risque d'inondation (type innondation) | pas situé en zone inondable |
Largeur front de rue | 6 |
---|---|
Surface bâtie (surf. bât. princ.) | 100 |
Nbre de toilette(s) (nombre) | 2 |
Chambre 1 (surface) | 13.5 m² |
Chambre 2 (surface) | 11.31 m² |
Chambre 3 (surface) | 13.96 m² |
Largeur de façade | 5 |
Profondeur terrain | 27 |
Nbre de terrasse(s) (nombre) | 1 |
Salle de séjour (surface) | 43.98 m² |
Cuisine (surface) | 11.46 m² |
Bureau (surface) | 12.63 m² |
Orientation de la terrasse 1 | ouest |
Buanderie | Oui |
---|---|
Bureau | Oui |
Cave | Oui |
Profession libérale poss. | Oui |
---|---|
Servitude | Non |
Jugement en cours | Non |
Permis de bâtir | Non |
Permis de lotir | Non |
Destination bâtiment (type) | privé - habitation |
Droit de préemption | Non |
Affectation urbanistique | zone d'habitat |
Intimation en justice | Non |
Volets | Oui |
---|---|
Volets (type) | volets type manuel |
Magasins (distance (m)) | 200 |
---|---|
Écoles (distance (m)) | 500 |
Transports en commun (distance (m)) | 250 |
Centre sportif (distance (m)) | 200 |
Magasins | Oui |
Ecoles | Oui |
Transports en commun | Oui |
Centre sportif | Oui |
Autoroute | Oui |
Autoroute (distance (m)) | 600 |
Piscine | Non |
---|
Sous régime TVA | Non |
---|---|
Loué | Non |
Habité (détails) | OUI |
Section | B |
---|---|
Numéro (n°) | 0316N2P0000 |
Surface (ha/a/ca) (surf. (ha/a/ca)) | 140 |
Revenu cadastral (€) (montant) | 577 € |
Égouts | Oui |
---|---|
Électricité | Oui |
Gaz | Oui |
Eau | Oui |
Châssis (type) | pvc |
---|
Surface de terrasse 1 | 23 m² |
---|
Type de revêtement de sol | carrelages |
---|
Certificat d'électricité (oui/non) | oui, non conforme |
---|
Label PEB (classe) | D |
---|---|
PEB E-SPEC (kwh/m²/an) | 297 |
E total (Kwh/an) | 66093 |
PEB code unique | 20181203006418 |
PEB valide jusqu'au (datetime) | 03/12/2028 |
Date du PEB (datetime) | 03/12/2018 |