Entrepôt - vendu - 4820 Dison

Entrepôt - à vendre - 4820 Dison
214 m² 1

Description

Situé en arrière zone, derrière une habitation, Léonard Immobilière vous propose ce hall de plus de 200 m² offrant un espace parfaitement adapté pour du stockage, une activité professionnelle, ou un usage privé. Discret et pratique, il dispose de nombreux atouts pour répondre à vos besoins.

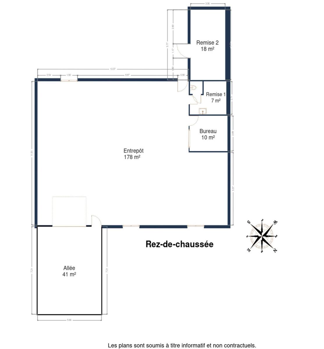
Le hall comprend une grande surface d’entreposage de 200 m², idéale pour stocker du matériel, des véhicules ou pour toute autre activité nécessitant un grand volume. Un bureau de 10 m² est également disponible, offrant un espace pratique pour gérer l’administratif directement sur place. Pour plus de confort, le hall dispose aussi d'une toilette et d’une remise.

À l’avant du bâtiment, vous trouverez un parking spacieux pouvant accueillir 4 voitures facilement. Le hall est chauffé grâce à un système de chauffage au mazout, garantissant un espace confortable en toute saison. Il est également équipé d’un pont élévateur pour voitures, parfait pour des activités liées à la mécanique ou l'entretien de véhicules.

À l’arrière, un petit jardin ajoute un espace extérieur agréable et peut servir de zone de détente ou de stockage supplémentaire. Le hall est sécurisé par un volet électrique, garantissant un accès facile et une sécurité renforcée.

Ce bien est idéal pour un entrepreneur, un artisan ou tout professionnel cherchant un espace de stockage fonctionnel, avec des équipements pratiques et un emplacement discret.

Adresse :

RUE DU CORBEAU 228 - 4820 Dison

Documents

Général

Référence 6506640
Catégorie Entrepôt
Garage Oui
Surface habitable 214 m²
Disponibilité à l'acte

Bâtiment

Année de construction 1991
Nombre de garage 1
Parking intérieur Oui
Parking extérieur Oui
Type de toit en pente

Nom, catégorie & situation

Nombre d'étages 0

Equipement de base

Accès handicapés Oui
Nbre de toilette(s) (nombre) 1
Toilettes H/F Oui
Nombre de bureaux général 1
Double vitrage Oui
Chauffage (type) air pulsé au mazout
Type d'électricité 380 V

En chiffres

Surface bâtie (surf. bât. princ.) 114
Largeur de façade 9
Bureaux (surface) 10 m²

Domaine juridique

Affectation urbanistique (type) ATELIER
Servitude Oui
Jugement en cours Non
Permis de bâtir Oui
Permis de lotir Non
Destination bâtiment (type) atelier
Droit de préemption Non
Intimation en justice Non

Sécurité

Volets Oui
Détails volets (type) type manuel

À proximité

Transports en commun (distance (m)) 1600
Magasins Oui
Ecoles Oui
Transports en commun Oui
Autoroute Oui
Autoroute (distance (m)) 1800

Charges & Rendement

Sous régime TVA Non
Loué Non

Cadastre

Section A
Numéro (n°) 0074R2P0000
Surface (ha/a/ca) (surf. (ha/a/ca)) 598
Revenu cadastral (€) (montant) 830 €

Raccordements

Égouts Non
Électricité Oui
Câbles téléphoniques Oui
Eau Oui

Équipements techniques

Châssis (type) pvc

Spécificités terrain

Type d'environnement campagne
Type d'environnement 2 central
Exposition de la façade avant nord-est
Risque d'inondation (type innondation) pas situé en zone inondable

Type de matériau & évaluation

Type de revêtement de sol béton poli

Certificats / Attestations

Certificat d'électricité (oui/non) non
Prendre contact pour le bien : 6506640

* Champs obligatoires

Sélection des points d'intérêts
Préférences pour les cookies

La protection de vos données personnelles est importante pour nous. C’est pourquoi nous détaillons ci-dessous les différents services et fonctionnalités du site qui utilisent des cookies et nous vous laissons décider des cookies que vous souhaitez autoriser ou refuser.

Veuillez cependant noter que si vous bloquez certains types de cookies, cela pourrait impacter votre expérience de navigation sur notre site ainsi que les fonctionnalités disponibles.

Nous utilisons des cookies fonctionnels obligatoires pour assurer le bon fonctionnement du site. Ils sont, par exemple, nécessaires pour retrouver le résultat d’une recherche ou enregistrer le choix de la langue.

Certaines fonctionnalités, comme l’affichage de vidéos ou de cartes géographiques, sont assurées via des composants externes développés par des partenaires comme YouTube ou Google. Certains composants utilisent des cookies qui sont susceptibles de permettre à ces tiers de suivre le comportement des internautes afin, par exemple, de réaliser du ciblage publicitaire. L’activation de ces fonctionnalités et des cookies associés est donc soumis à votre consentement.